Property Details
• Price: 107.000.000 Ft
• Price/sqm: 718.121 Ft
• Official Size: 149m2
• Actual Size: 149m2
• Inner Height: 4.0 m
• Property Type: Apartment
• City: Budapest
• District: VIII.
• Bathrooms: 4
• Rooms: 7
• Toilettes: 4
• Electricity: 1
• Gas: 1
Property Description
Budapest, Palace District, Szentkirályi Street 35.
Only available at RE / MAX!
149sqm // 4 separate apartments, each with its kitchen and bathroom // electricity consumption and heating can be measured separately per apartment // each apartment are equipped with an alarm // modern doors and windows // underfloor heating and radiator circulating heating // renovated condominium // Kálvin Square and Mikszáth Kálmán Square is a few steps from the apartment.
ABOUT THE CONDOMINIUM
The condominium situated on the corner of Museum Street and Szentkirályi Street was built in 1863 for Count Alajos Károlyi, who was the Monarchy's ambassador to London. The original 2-storey house was raised in 1927 by 2 more floors. The 10 windows of the property face Múzeum street, opposite the Pázmány Péter Catholic University and the Csekonics Palace - Károli Gáspár Reformed University. The electricity and gas lines in the house have been replaced and the interior facade is newly painted. Trash cans are out of sight, stored in a place separate from the gate entrance. The residential community of the 50-apartment condominium is cultured, Airbnb is not banned.
Location Description
ABOUT THE SURROUNDINGS
The Palace District is home to outstanding universities such as the Faculty of Arts of Eötvös Lóránd University, the Faculty of Law and Political Science of the Pázmány Péter Catholic University, the Károli Gáspár Reformed University, the Andrássy Gyula University of Technology, the Theater and Film University, the National Jewish University of Rabbinical Training, Semmelweis University of Medicine. The National Museum and the Ervin Szabó Library are a few minutes walks from the apartment.
The terraces of Mikszáth Kálmán Square, Krúdy and Lőrincz pap Square, pulsating with the crowds of students, are only five steps away from the apartment. Life is buzzing here every night. The surrounding charming streets have been renovated, paved, and wooded streets.
Public transport is the most comfortable, with all metro lines, 4-6 trams and many bus services just a few minutes walk away. Kálvin tér metro station is a 5 minutes walk away.
The Palace District is home to outstanding universities such as the Faculty of Arts of Eötvös Lóránd University, the Faculty of Law and Political Science of the Pázmány Péter Catholic University, the Károli Gáspár Reformed University, the Andrássy Gyula University of Technology, the Theater and Film University, the National Jewish University of Rabbinical Training, Semmelweis University of Medicine. The National Museum and the Ervin Szabó Library are a few minutes walks from the apartment.
The terraces of Mikszáth Kálmán Square, Krúdy and Lőrincz pap Square, pulsating with the crowds of students, are only five steps away from the apartment. Life is buzzing here every night. The surrounding charming streets have been renovated, paved, and wooded streets.
Public transport is the most comfortable, with all metro lines, 4-6 trams and many bus services just a few minutes walk away. Kálvin tér metro station is a 5 minutes walk away.
Other Description
ABOUT THE APARTMENT
In 2013, 3 comfortable apartments and a studio apartment were built in the 149sqm property. The ground floor windows of the apartment facing Museum Street are above head level, and below the apartment, we find office space. The 4 apartments have been continuously operated as student accommodation in recent years, the monthly half-million HUF + utilities are guaranteed. Residents have moved out this summer and currently do not live in any of the apartments. The apartments were not rented out due to the sale.
The 4 apartments have the following common features:
- Modern plastic doors and windows
- Main entrance with a number lock
- Security entrance doors and alarm per apartment
- New water and electricity pipelines
- Electricity consumption and heating can be measured separately for each apartment
- Hot water is provided by a boiler
- Private bathrooms and separate toilets
- Each apartment has a different size and style
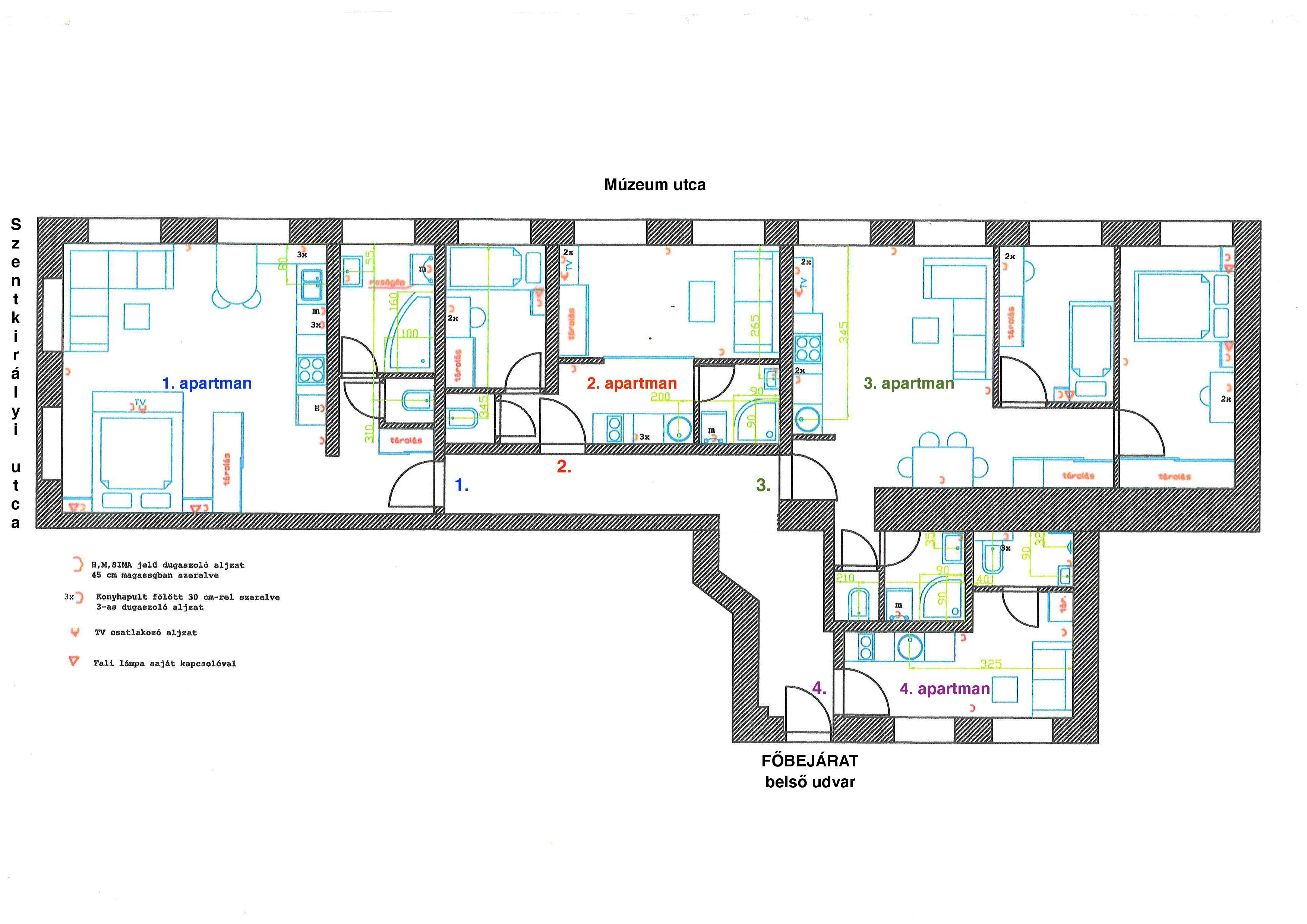
APARTMENT 1.
- Museum street view with 3 windows
- Studio apartment
- Equipped kitchen
- Underfloor heating
- Bathroom with bathtub with large street window
- The toilet in a separate room
- Ideal apartment for 1 person or a couple
APARTMENT 2.
- Museum street view with 3 windows
- 1 bedroom
- The living room can be separated from the kitchen with a pull-out screen
- Underfloor heating
- Bathroom with shower
- Separate toilet
- Ideal apartment for 2 people
APARTMENT 3.
- Museum street view with 4 windows
- 2 bedrooms
- Living room with American kitchen
- Radiator heating
- Bathroom with shower
- Separate toilet
- Ideal apartment for 2 - 3 people
APARTMENT 4.
- Overlooks the internal courtyard with 2 windows
- Studio apartment
- Radiator heating
- Bathroom with shower + toilet
- We also find mechanical engineering here
- Apartment suitable for 1 person
You have to reckon with this investment opportunity, call for details! I can handle flexibly the viewing of the property.
In 2013, 3 comfortable apartments and a studio apartment were built in the 149sqm property. The ground floor windows of the apartment facing Museum Street are above head level, and below the apartment, we find office space. The 4 apartments have been continuously operated as student accommodation in recent years, the monthly half-million HUF + utilities are guaranteed. Residents have moved out this summer and currently do not live in any of the apartments. The apartments were not rented out due to the sale.
The 4 apartments have the following common features:
- Modern plastic doors and windows
- Main entrance with a number lock
- Security entrance doors and alarm per apartment
- New water and electricity pipelines
- Electricity consumption and heating can be measured separately for each apartment
- Hot water is provided by a boiler
- Private bathrooms and separate toilets
- Each apartment has a different size and style
APARTMENT 1.
- Museum street view with 3 windows
- Studio apartment
- Equipped kitchen
- Underfloor heating
- Bathroom with bathtub with large street window
- The toilet in a separate room
- Ideal apartment for 1 person or a couple
APARTMENT 2.
- Museum street view with 3 windows
- 1 bedroom
- The living room can be separated from the kitchen with a pull-out screen
- Underfloor heating
- Bathroom with shower
- Separate toilet
- Ideal apartment for 2 people
APARTMENT 3.
- Museum street view with 4 windows
- 2 bedrooms
- Living room with American kitchen
- Radiator heating
- Bathroom with shower
- Separate toilet
- Ideal apartment for 2 - 3 people
APARTMENT 4.
- Overlooks the internal courtyard with 2 windows
- Studio apartment
- Radiator heating
- Bathroom with shower + toilet
- We also find mechanical engineering here
- Apartment suitable for 1 person
You have to reckon with this investment opportunity, call for details! I can handle flexibly the viewing of the property.