Property Details
• Price: 61.900.000 Ft
• Price/sqm: 1.547.500 Ft
• Official Size: 40m2
• Actual Size: 40m2
• Property Type: Apartment
• City: Budapest
• District: XI.
• Bathrooms: 1
• Rooms: 1
• Toilettes: 1
• Floor: 3
• Elevator: Available
• Building Style: Civil style
• Stairway Type: Circular
• Light Conditions: sunny
• Floor: 3
• Comfort Level
With all modern conveniences
Property Description
In the XI. district, near the Móricz Zsigmond körtér, on the corner of Bartók Béla út and Ménesi út a one bedroom, 3rd floor apartment is for sale in a well-kept apartment building!
The building is located at the foot of the Gellért Hill, and the apartment is located on Ménesi út, with windows overlooking the green area, a very quiet and sunny apartment.
The corridor leading to the apartment overlooks the Bartók House Office Building, so the inner part of the building faces an open, tidy environment and this side of the building is also sunny and bright.
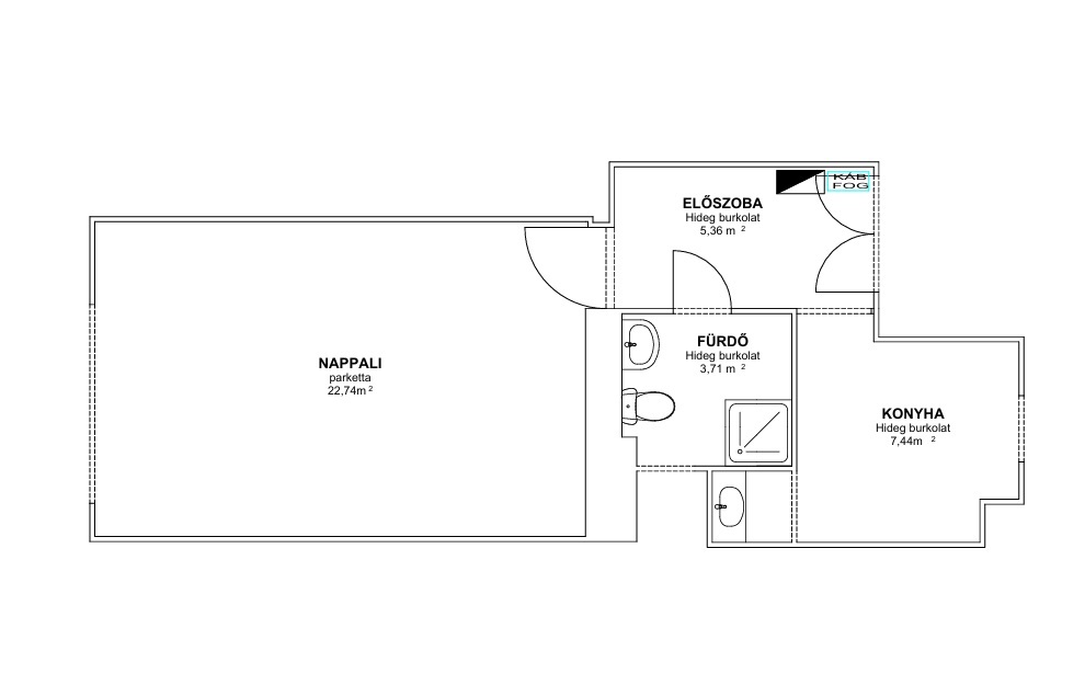
The layout of the apartment is practical, with a windowed kitchen to the left of the entrance hall, where the sun shines in. The spacious entrance hall leads to the bathroom with toilet. The bathroom is of a good size, not cramped, and the washing machine fits comfortably. The property currently has one large, spacious room and faces towards Gellért Hill on Ménesi Road. Fresh air from the Gellért Hill can be let in when ventilated.
The kitchen can also be converted into a small bedroom/study. The bathroom is next to the room, so it is easy to create a living room with an American kitchen.
The wiring/plumbing in the apartment has been previously renovated. The electrical network has been recently renovated.
The property measures 40 sqm and has a ceiling height of 3.6 m.
The flat has a low common cost of 7,240 HUF and is equipped with separate meters.
The location is also excellent for public transport. Nearby restaurants, shopping, schools, universities.
Unencumbered, quick to move in.
The building is located at the foot of the Gellért Hill, and the apartment is located on Ménesi út, with windows overlooking the green area, a very quiet and sunny apartment.
The corridor leading to the apartment overlooks the Bartók House Office Building, so the inner part of the building faces an open, tidy environment and this side of the building is also sunny and bright.
The layout of the apartment is practical, with a windowed kitchen to the left of the entrance hall, where the sun shines in. The spacious entrance hall leads to the bathroom with toilet. The bathroom is of a good size, not cramped, and the washing machine fits comfortably. The property currently has one large, spacious room and faces towards Gellért Hill on Ménesi Road. Fresh air from the Gellért Hill can be let in when ventilated.
The kitchen can also be converted into a small bedroom/study. The bathroom is next to the room, so it is easy to create a living room with an American kitchen.
The wiring/plumbing in the apartment has been previously renovated. The electrical network has been recently renovated.
The property measures 40 sqm and has a ceiling height of 3.6 m.
The flat has a low common cost of 7,240 HUF and is equipped with separate meters.
The location is also excellent for public transport. Nearby restaurants, shopping, schools, universities.
Unencumbered, quick to move in.
Location Description
In the XI. district, near the Móricz Zsigmond körtér, on the corner of Bartók Béla út and Ménesi út a one bedroom, 3rd floor apartment is for sale in a well-kept apartment building!
The building is located at the foot of the Gellért Hill, and the apartment is located on Ménesi út, with windows overlooking the green area, a very quiet and sunny apartment.
The corridor leading to the apartment overlooks the Bartók House Office Building, so the inner part of the building faces an open, tidy environment and this side of the building is also sunny and bright.
The layout of the apartment is practical, with a windowed kitchen to the left of the entrance hall, where the sun shines in. The spacious entrance hall leads to the bathroom with toilet. The bathroom is of a good size, not cramped, and the washing machine fits comfortably. The property currently has one large, spacious room and faces towards Gellért Hill on Ménesi Road. Fresh air from the Gellért Hill can be let in when ventilated.
The kitchen can also be converted into a small bedroom/study. The bathroom is next to the room, so it is easy to create a living room with an American kitchen.
The wiring/plumbing in the apartment has been previously renovated. The electrical network has been recently renovated.
The property measures 40 sqm and has a ceiling height of 3.6 m.
The flat has a low common cost of 7,240 HUF and is equipped with separate meters.
The location is also excellent for public transport. Nearby restaurants, shopping, schools, universities.
Unencumbered, quick to move in.
The building is located at the foot of the Gellért Hill, and the apartment is located on Ménesi út, with windows overlooking the green area, a very quiet and sunny apartment.
The corridor leading to the apartment overlooks the Bartók House Office Building, so the inner part of the building faces an open, tidy environment and this side of the building is also sunny and bright.
The layout of the apartment is practical, with a windowed kitchen to the left of the entrance hall, where the sun shines in. The spacious entrance hall leads to the bathroom with toilet. The bathroom is of a good size, not cramped, and the washing machine fits comfortably. The property currently has one large, spacious room and faces towards Gellért Hill on Ménesi Road. Fresh air from the Gellért Hill can be let in when ventilated.
The kitchen can also be converted into a small bedroom/study. The bathroom is next to the room, so it is easy to create a living room with an American kitchen.
The wiring/plumbing in the apartment has been previously renovated. The electrical network has been recently renovated.
The property measures 40 sqm and has a ceiling height of 3.6 m.
The flat has a low common cost of 7,240 HUF and is equipped with separate meters.
The location is also excellent for public transport. Nearby restaurants, shopping, schools, universities.
Unencumbered, quick to move in.
Other Description
In the XI. district, near the Móricz Zsigmond körtér, on the corner of Bartók Béla út and Ménesi út a one bedroom, 3rd floor apartment is for sale in a well-kept apartment building!
The building is located at the foot of the Gellért Hill, and the apartment is located on Ménesi út, with windows overlooking the green area, a very quiet and sunny apartment.
The corridor leading to the apartment overlooks the Bartók House Office Building, so the inner part of the building faces an open, tidy environment and this side of the building is also sunny and bright.
The layout of the apartment is practical, with a windowed kitchen to the left of the entrance hall, where the sun shines in. The spacious entrance hall leads to the bathroom with toilet. The bathroom is of a good size, not cramped, and the washing machine fits comfortably. The property currently has one large, spacious room and faces towards Gellért Hill on Ménesi Road. Fresh air from the Gellért Hill can be let in when ventilated.
The kitchen can also be converted into a small bedroom/study. The bathroom is next to the room, so it is easy to create a living room with an American kitchen.
The wiring/plumbing in the apartment has been previously renovated. The electrical network has been recently renovated.
The property measures 40 sqm and has a ceiling height of 3.6 m.
The flat has a low common cost of 7,240 HUF and is equipped with separate meters.
The location is also excellent for public transport. Nearby restaurants, shopping, schools, universities.
Unencumbered, quick to move in.
The building is located at the foot of the Gellért Hill, and the apartment is located on Ménesi út, with windows overlooking the green area, a very quiet and sunny apartment.
The corridor leading to the apartment overlooks the Bartók House Office Building, so the inner part of the building faces an open, tidy environment and this side of the building is also sunny and bright.
The layout of the apartment is practical, with a windowed kitchen to the left of the entrance hall, where the sun shines in. The spacious entrance hall leads to the bathroom with toilet. The bathroom is of a good size, not cramped, and the washing machine fits comfortably. The property currently has one large, spacious room and faces towards Gellért Hill on Ménesi Road. Fresh air from the Gellért Hill can be let in when ventilated.
The kitchen can also be converted into a small bedroom/study. The bathroom is next to the room, so it is easy to create a living room with an American kitchen.
The wiring/plumbing in the apartment has been previously renovated. The electrical network has been recently renovated.
The property measures 40 sqm and has a ceiling height of 3.6 m.
The flat has a low common cost of 7,240 HUF and is equipped with separate meters.
The location is also excellent for public transport. Nearby restaurants, shopping, schools, universities.
Unencumbered, quick to move in.